Miami - McDonald Jones Homes
- Area (Sq M)279.60
- Bedrooms4
- Bathrooms2
- Garages2
- Location Quinns Lane, Nowra
- Open Hours7 Days - 10am - 5pm
- Contact1300 555 382
www.mcdonaldjoneshomes.com.au
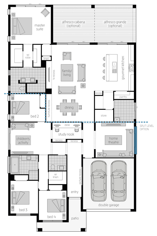
Description
An enduring favourite for modern families looking for flexibility over the years, this home is the culmination of clever living spaces; wide, airy rooms; and designer style.
Chef’s choice - The designer chef’s Gourmet Kitchen is a delight for those who love to nurture their guests with food and stand-out hospitality. Incredible storage and wide, abundant bench tops make this kitchen the perfect place to cater for parties, as well as to smaller, more casual family meals. What’s more, its central location in the large Family/Living and Dining space opening to the optional Alfresco Cabana means the chef is always part of the action!
Luxury on another level - Unique and elegant, the Miami provides a level of luxury you’d usually expect from one-off bespoke homes. The straight-forward and simple use of space, combined with the resort-style ambience deliver an ambience that will always draw you home – what you always imagined was only a dream can now be your reality.
Sanctuary and escape - With the front of the Miami entirely dedicated to a kids’ wing, this home makes perfect sense for families. Three Bedrooms, a Bathroom with separate WC, Study Nook and Children’s Activity make up this large area, where the kids can feel free to kick off their shoes and chill for some study or socialising with friends. And Mum and Dad will revel in the silence at the other end of the home, where the large Master Suite with large Ensuite and spacious Walk-In Robe create a world of their own.
Specs
- Living 40.282
- Master Suite 14.822
- Bed 2 10.52
- Bed 3 9.82
- Bed 4 8.962
- Home Theatre 13.692
- Children’s Activity 13.262
- Study Nook 5.12
- Double Garage 30.252
- Alfresco Cabana 16.772
- Alfresco Grande 32.762
Inclusions
- Home Theatre
- Children's Activity
- Study Nook
- Powder Room

